Einfamilienhaus mit Charakter und Bauplatz-Reserve in guter Lage
Anbieter:
RE/MAX in Regensburg
Herr Rudolf Arnold
Prüfeninger Schloßstr. 2
93051 Regensburg
Telefon: +49 941 30770-238
E-Mail: rudolf.arnold@remax.de
Homepage: www.remax-regensburg.de
Eckdaten
Finanzdaten
Objekt Beschreibung:
Willkommen zu Ihrem potenziellen neuen Zuhause in Schwandorf, einem charmanten kleinen Einfamilienhaus, mit viel Möglichkeiten.
Dieses gepflegte Anwesen, präsentiert sich auf einem großzügigen Grundstück von 1.165 m² und bietet ideale Bedingungen für Familien, die eine gute Lage zu schätzen wissen.
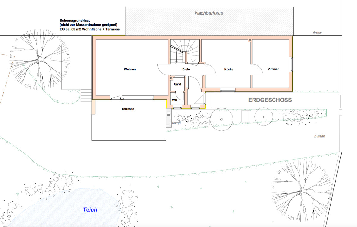
Mit einer Wohnfläche von ca. 128,5 m² auf zwei Etagen erwartet Sie ein interessantes Raumkonzept mit einem kompakten Grundriss für eine 3-4-köpfige Familie oder Paare mit individualisierbarem Raumbedarf.
Sie betreten das Haus über einen kleinen Windfang und gelangen direkt in die Diele mit anschließender Garderobe und Gäste-WC. Von hier aus betreten Sie die Wohnküche mit einem anschliessenden Raum, welcher variabel z.B. als Esszimmer, Hausarbeitsraum, Büro oder Gästezimmer genutzt werden kann oder das gartenseitige große Wohnzimmer mit vorliegender Terrasse. Zugleich führen von der Diele aus Treppen in den Keller und ins Obergeschoss mit den privateren Individualräumen: Rechts ein großer westorientierter Raum mit eigenem Balkon - ideal z.B. als großes Kinder- oder Schlafzimmer, links zwei weitere Zimmer, z.B. als Schlafraum mit Ankleide oder Kinderzimmer nutzbar.
Das zentral im OG liegende Badezimmer mag nach heutigen Maßstäben klein erscheinen, verfügt aber über Badewanne, WC, Bidet und einen Doppelwaschtisch - und wird bei Bedarf durch einen großzügigen Wellnessbereich im Keller ergänzt.
Im Keller findet sich neben dem Wellenesbereich mit Sauna und Gartenausgang ausreichend Platz für Hausarbeit und Wäsche, ein weiterer variabler Kellerraum sowie der Heizungskeller. - Insgesamt ca. 60 m2 beheizbare Kellerfläche sowie ein hilfreicher (unbeheizter) Lagerraum mit ca. 10 m2 z.B. zur Lebensmittellagerung.
Die Kombination aus ruhiger Wohnlage und einem großzügigen Grundstück bietet Ihnen zahlreiche Möglichkeiten zur Neugestaltung und Modernisierung des Anwesens ganz nach Ihren Vorstellungen.
Nutzen Sie die einmalige Gelegenheit, diese Immobilie zu Ihrem neuen Zuhause zu machen. Zögern Sie nicht, mich für weitere Informationen oder einen Besichtigungstermin zu kontaktieren.
Lage:
Das angebotene Objekt befindet sich in der charmanten Stadt Schwandorf, eingebettet in die malerische Landschaft der Oberpfalz. Schwandorf besticht durch seine ideale Kombination aus städtischem Komfort und ländlicher Idylle.
Die Immobilie liegt in einer ruhigen, familienfreundlichen Gegend, die durch eine attraktive Umgebung geprägt ist (Weinberg).
In fußläufiger Nähe zum Grundstück befinden sich Freizeitmöglichkeiten (kleiner Wald, Spielplatz) und Bildungseinrichtungen (Schulen, Kindergarten).
Die infrastrukturelle Anbindung ist hervorragend, da sowohl der öffentliche Nahverkehr als auch die Anbindung an überregionale Verkehrswege schnell erreichbar sind. Diese Lage bietet eine erstklassige Lebensqualität für Familien und Paare, die sowohl die Ruhe als auch die nähe zur Natur und gleichzeitig die Vorzüge einer gut vernetzten Stadt schätzen.
Beschreibung zur Ausstattung:
1165 m2 Grundstück
("Bauplatzreserve")
128,5 m2 Wohnfläche
70 m2 Nutzflläche (Keller)
Haus in Ziegel-Massivbauweise mit Aussendämmung
großer Doppelgarage (geeignet für 2 Wohnmobile)
und Carportvordach.
Gepflegter Garten mit kleinem Teich.
Im Haus teilweise Einbaumöbel, Holzecken,
Parkett- und Fliesenböden, Treppenlift ins OG.
Kein Renovierungsbedarf
Modernisierung nach pers. Vorstellungen: die Qualität der Ausstattung ist gut aber sicher nicht mehr überall zeitgemäß:
Sie können sofort einziehen oder nach Ihren Vorstellungen modernisieren.
Historie:
Der Großteil des heutigen Hauses wurde 1964 neu errichtet, dabei
wurden Teile eines kleineren, bestehenden Siedlungshauses generalsaniert und integriert.
Kellererweiterung 1979
Garage 1978, saniert und erweitert 1989 und 1997 (Carportvordach)
Fenster 1995
Heizung 1998
Terrasse & Balkon 2006 und 2012
Kellersanierung 2009
Aktuell kein Sanierungsbedarf (mit Ausnahme einer Teilfläche des Terrassenbelages, Material ist bereits vorhanden.)
Gaszentralheizung plus zweiter Kamin (Ofenoption) und Terrassenkamin
Energiedaten nach Bedarfsausweis aus 2025:
Gebäude Bj 1964, Heizung Bj 1998, EA-B, HZG Gas, 177,30 kWh/(m²a), EEK F.
Laut aktueller Beispielberechnung des Energieberaters mit geringem Aufand (Dachbodendämmung) zu verbessern auf Energieeffizienzklasse E, mit Luftwärmepumpe sogar auf A.
Stand vom: 2025-10-21
Anbieter:
RE/MAX in Regensburg
Herr Rudolf Arnold
Prüfeninger Schloßstr. 2
93051 Regensburg
Telefon: +49 941 30770-238
E-Mail: rudolf.arnold@remax.de
Homepage: www.remax-regensburg.de
Kontaktformular:






















Rudi Arnold
RE/MAX in Regensburg