Mittendrin! Charmantes Reihenmittelhaus am Hohensand
Anbieter:
RE/MAX in Regensburg
Herr Rudolf Arnold
Prüfeninger Schloßstr. 2
93051 Regensburg
Telefon: +49 941 30770-238
E-Mail: rudolf.arnold@remax.de
Homepage: www.remax-regensburg.de
Eckdaten
Finanzdaten
Objekt Beschreibung:
Das charmante Reihenmittelhaus befindet sich in einer ruhigen und familienfreundlichen Wohngegend "Am Hohensand" in der Gemeinde Lappersdorf.
Der Zugang erfolgt über einen liebevoll angelegten Vorgarten in den Eingangsbereich mit praktischem Windfang. Linkerhand befindet sich ein Gäste-WC, während eine Garderobennische sowie ein Schrank zusätzlichen Stauraum in der Diele bieten. Rechterhand gelangen Sie in die großzügige, helle Küche.
Das geräumige Wohnzimmer mit integriertem Essbereich bietet einen direkten Zugang zur sonnigen Terrasse und dem gepflegten, grün eingewachsenen Garten. Durch das Entfernen der Zwischenwand zur Küche ließe sich problemlos ein moderner, offener Wohnbereich realisieren.
Über eine Holztreppe erreichen Sie das Obergeschoss. Hier befindet sich das Tageslichtbad mit Badewanne, WC und Waschbecken. Ein Kinderzimmer sowie ein Schlafzimmer mit Zugang zum Balkon stehen ebenfalls zur Verfügung. Ein weiteres Zimmer eignet sich ideal als Home-Office oder Ankleide.
Im Flurbereich besteht zudem die Möglichkeit, eine praktische Ankleide oder einen Einbauschrank mit Spiegel zu integrieren – ganz nach Ihren individuellen Vorstellungen.
Das ausgebaute Dachgeschoss umfasst ein helles, großzügiges Zimmer, das sich ideal als Kinderzimmer, Büro oder Hobbyraum eignet. Zusätzlich steht ein Badezimmer mit Dusche, WC und Waschbecken zur Verfügung – eine praktische Ergänzung, insbesondere für größere Haushalte oder zur Nutzung als Gästeetage. Eine weitere Abstellfläche bietet zusätzlichen Stauraum.
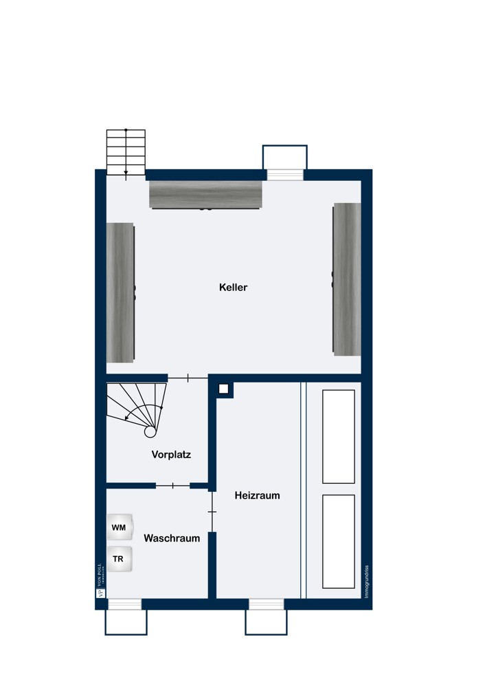
Das Haus ist vollständig unterkellert. Neben dem Heizungsraum stehen eine separate Waschküche sowie ein großer Kellerraum zur Verfügung, der derzeit als Werkstatt genutzt wird.
Der liebevoll angelegte Garten bietet vielseitige Nutzungsmöglichkeiten: Eine sonnige Terrasse lädt zum Entspannen und Verweilen im Freien ein. Ein kleines Gartenhäuschen dient als praktischer Stauraum für Gartengeräte oder Spielzeug. Aktuell befindet sich im Garten ein dekorativer Fischteich, der auf Wunsch selbstverständlich entfernt werden kann. Hohe Hecken umrahmen das Grundstück und sorgen für eine angenehme Privatsphäre.
Für Ihr Fahrzeug steht eine Einzelgarage zur Verfügung – eine wertvolle Ergänzung zur Immobilie.
Lage:
Am Hohensand
Hohensand ist ein Ortsteil des Marktes Lappersdorf im Landkreis Regensburg und gehört zur Gemarkung Kareth. Die Straße „Am Hohensand“ liegt somit innerhalb des Gemeindegebiets von Lappersdorf, genauer gesagt im Bereich von Kareth.
Die Kombination aus der Nähe zur UNESCO-Welterbestadt, einer charmanten, dörflichen Atmosphäre, einer sehr gut ausgebauten Infrastruktur – insbesondere im schulischen Bereich – sowie einem breit gefächerten Freizeitangebot macht Lappersdorf zu einem der gefragtesten Wohnorte im Regensburger Umland.
Ein aktives Vereinsleben mit Angeboten wie Fußball, Tennis oder Turnen fördert das Miteinander und bietet abwechslungsreiche Möglichkeiten für alle Altersgruppen. Besonders reizvoll ist das idyllische Flusswehr am Regen, das mit seinen naturbelassenen Uferbereichen zu Spaziergängen, Radtouren oder entspannten Stunden im Grünen einlädt – ein Ort, an dem Naturerlebnis und Erholung direkt vor der Haustür beginnen.
Beschreibung zur Ausstattung:
Ausstattungsmerkmale:
- ruhige Wohnlage
- Praktikabler Grundriss
- Offener Schnitt im EG
- Stabparkett mit Echtholz im EG
- Gäste WC EG
- gepflegter Garten
- sonnige Terrasse mit Gartenhäuschen
- zwei Badezimmer (OG & DG)
- zusätzlicher Raum für Home-Office oder Ankleide
- voll unterkellert
- Werkstatt und Waschküche
- Einzelgarage
Stand vom: 2025-07-31
Anbieter:
RE/MAX in Regensburg
Herr Rudolf Arnold
Prüfeninger Schloßstr. 2
93051 Regensburg
Telefon: +49 941 30770-238
E-Mail: rudolf.arnold@remax.de
Homepage: www.remax-regensburg.de
Kontaktformular:














































Rudi Arnold
RE/MAX in Regensburg