3-Zimmer-Wohnung: Groß geht auch im Kleinen!
Anbieter:
RE/MAX in Regensburg
Herr Rudolf Arnold
Prüfeninger Schloßstr. 2
93051 Regensburg
Telefon: +49 941 30770-238
E-Mail: rudolf.arnold@remax.de
Homepage: www.remax-regensburg.de
Eckdaten
Finanzdaten
Objekt Beschreibung:
Leben im Ortszentrum: Zum Verkauf steht eine Eigentumswohnung im Obergeschoss eines Schwarzenfelder Wohn-und Geschäftshauses welches 1970 erbaut wurde.
Die heutige Grundrissgestaltung basiert auf einem späteren Umbau, zuletzt modernisiert 2015.
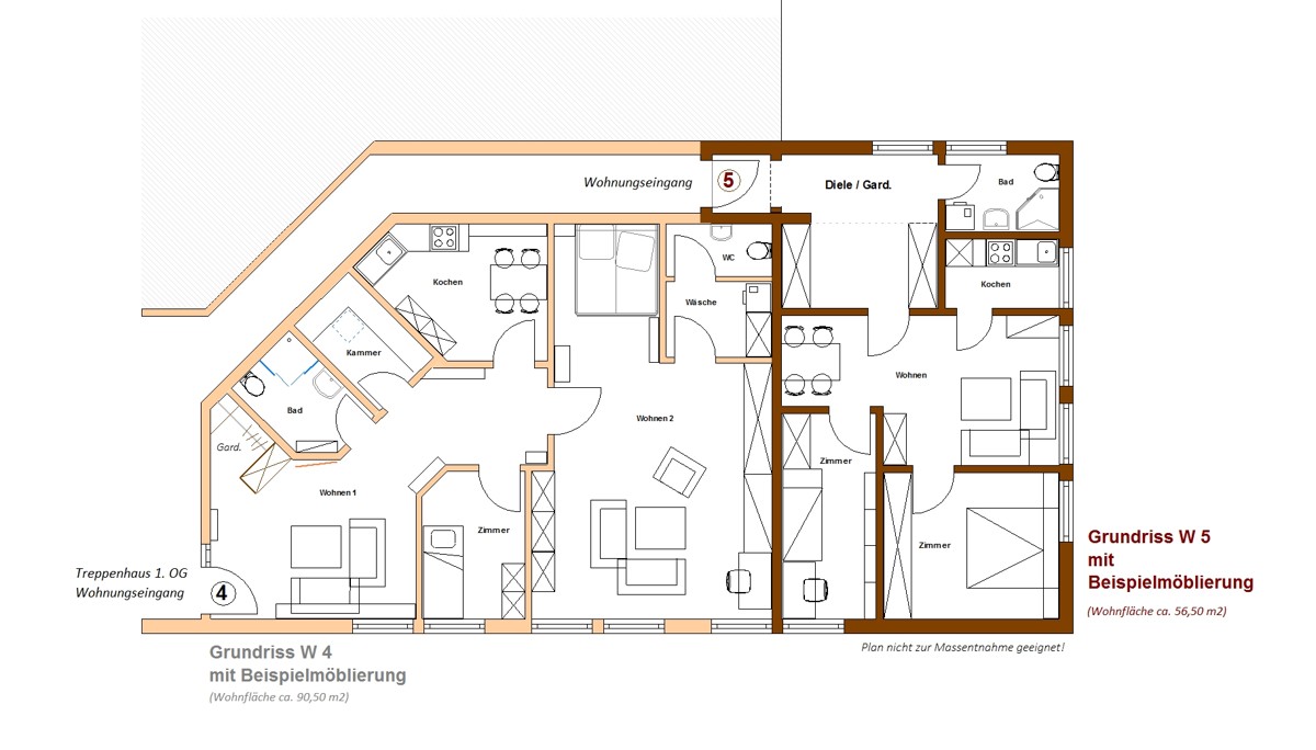
Die Wohnfläche von ca. 56,5 m², verteilt sich auf drei kompakte Aufenthaltsräume, eine kleine Küche sowie eine Diele mit ausrechend Stauraumfläche. Das helle, funktionale Badezimmer mit Platz für eine Waschmaschine vervollständigt den durchdachten Grundriss: Groß im Kleinen - und geeignet für Singles, Paare oder Familie mit Kind!
Siehe auch Grundrissplan: Wohnung W5 mit Beispielmöblierung (im Bildteil).
Solide Bauqualität, regelmäßige Modernisierung und Unterhaltspflege:
Kein Renovierungsstau, einfach weiter vermieten ... oder selber einziehen.
EnEV-Angaben: Bj.1980; Verbrauchsausweis; HZG-Gas: 206kWh(m2*a); EEK G
Lage:
Die angebotene Eigentumswohnung befindet sich im Zentrum von Schwarzenfeld, einer idyllischen Gemeinde im Herzen der Oberpfalz, Bayern. Diese Region ist bekannt für ihre malerische Landschaft und die harmonische Kombination aus ländlicher Ruhe und städtischem Komfort. Schwarzenfeld bietet eine hervorragende Infrastruktur mit diversen Einkaufsmöglichkeiten, Restaurants und Cafés, die allesamt bequem zu erreichen sind.
Nicht weit von der Immobilie entfernt, ermöglichen öffentliche Grünflächen und Spazierwege eine Vielzahl von Freizeitaktivitäten im Freien, ideal für Naturliebhaber und Familien. Zudem ist Schwarzenfeld verkehrstechnisch sehr gut angebunden. Die Nähe zu größeren Städten ermöglicht es den Bewohnern, sowohl den beruflichen Verpflichtungen als auch kulturellen Veranstaltungen in der Umgebung problemlos nachzukommen.
Durch die gute Anbindung an öffentliche Verkehrsmittel sowie die Nähe zur Autobahn ist die Wohnung ein idealer Ausgangspunkt für Pendler und ermöglicht eine schnelle Erreichbarkeit der umliegenden Städte (Schwandorf, Weiden, Regensburg, Amberg).
Schulen und Kindergärten machen die Gegend besonders attraktiv für Familien.
Genießen Sie das Wohlgefühl eines Heimatortes mit der praktischen Nähe zu urbanen Zentren.
Beschreibung zur Ausstattung:
- kompakte 3-Zimmer Etagenwohnung im 1. OG
- ca. 56,50 m2 Wohnfläche
- Gas-Zentralheizung (Heizkörper)
- Fenster, Böden, Türen 2015 erneuert
- Heizkessel neu in 2019
- guter Zustand
- aktuell vermietet (Kaltmiete 450,00 €)
- eigener Lagerraum im Dachboden (über Treppenhaus)
- öffentliche Parkplätze vor dem Haus
Stand vom: 2025-07-25
Anbieter:
RE/MAX in Regensburg
Herr Rudolf Arnold
Prüfeninger Schloßstr. 2
93051 Regensburg
Telefon: +49 941 30770-238
E-Mail: rudolf.arnold@remax.de
Homepage: www.remax-regensburg.de
Kontaktformular:


















Rudi Arnold
RE/MAX in Regensburg