Praxis- oder Büroräume in Innenstadtlage
Anbieter:
RE/MAX in Regensburg
Herr Rudolf Arnold
Prüfeninger Schloßstr. 2
93051 Regensburg
Telefon: +49 941 30770-238
E-Mail: rudolf.arnold@remax.de
Homepage: www.remax-regensburg.de
Eckdaten
Finanzdaten
Objekt Beschreibung:
Willkommen in Ihrem neuen, idealen Arbeitsumfeld im Herzen von Schwandorf! Dieses gepflegte Geschäftshaushaus, Baujahr 1990, bietet eine hervorragende Möglichkeit zur Miete für all jene, die auf der Suche nach einer hochwertigen Büro- oder Praxisfläche sind.
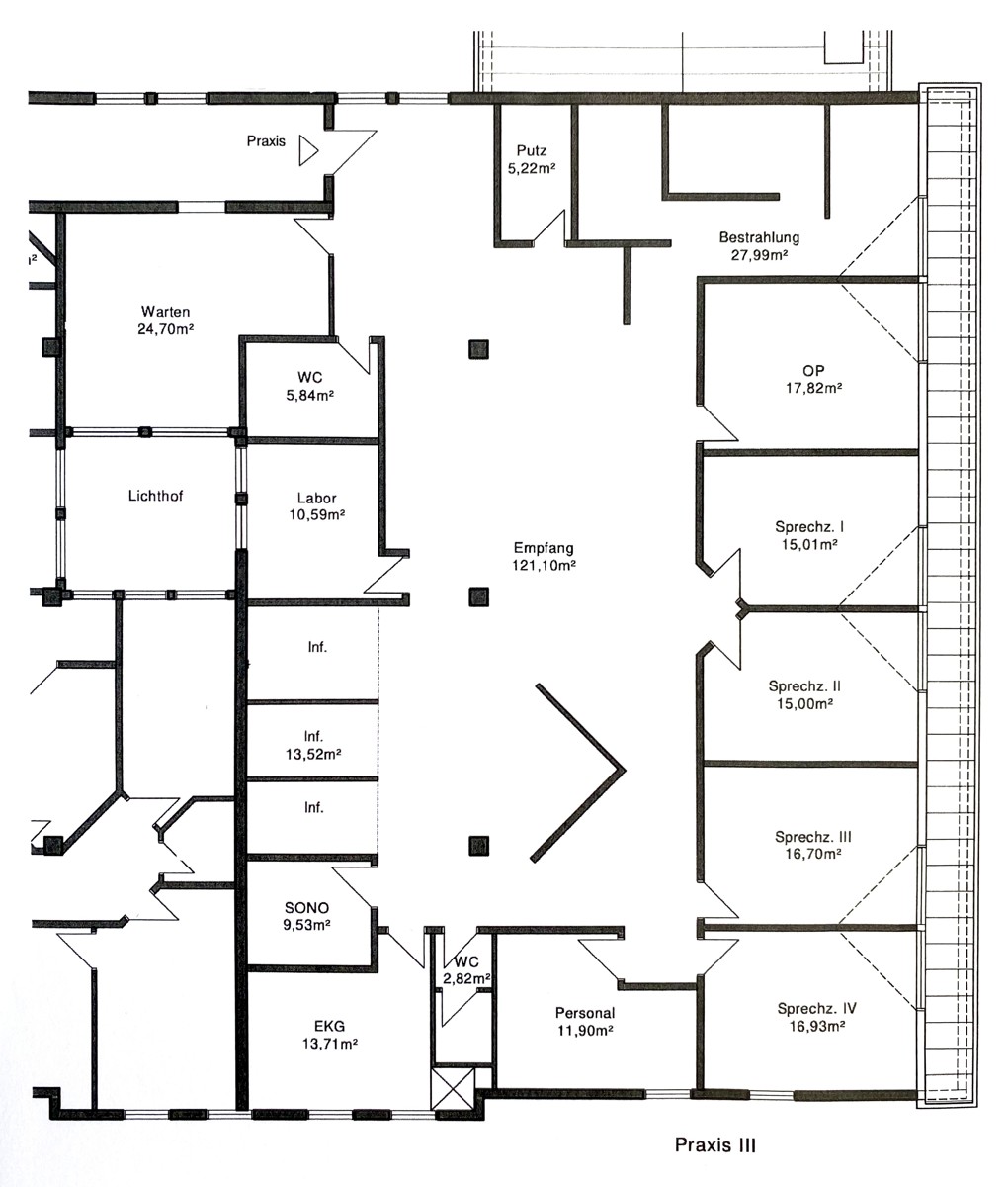
Circa 335 Quadratmeter Nutzfläche, verteilt auf 7 individualisierbare Aufenthaltsräume (mit Aussenfenstern), Wartezimmer und Laborraum (beide mit Befensterung zum Lichthof), einen großen, zentralen Empfangsraum und weiteren Nebenräume (Toiletten, Putzraum, etc.) - siehe Plan im Bildteil.
Die Immobilie befindet sich in zentraler Lage von Schwandorf und ermöglicht es Ihnen, sowohl von der Nähe zu anderen Unternehmen als auch von einer hervorragenden Erreichbarkeit zu profitieren.
Genießen Sie ein professionelles Ambiente, das durch den gepflegten Zustand des Gebäudes unterstrichen wird. Ganz gleich, ob Sie eine Praxis oder ein Büro eröffnen möchten, diese Immobilie bietet die Flexibilität und den Komfort, den Sie benötigen, um erfolgreich zu sein.
Nutzen Sie die Gelegenheit, Ihr Geschäft an einem so prominenten Standort wachsen zu lassen. Wir freuen uns darauf, Ihnen diese beeindruckende Immobilie persönlich vorzustellen. Treten Sie mit mir in Kontakt und vereinbaren Sie noch heute einen Besichtigungstermin!
Energieangaben
Baujahr 1990, EA-V, HZG Gas, 42,38 kWh/(m²a), EEK A.
Lage:
Das attraktive Praxishaus befindet sich in zentraler Lage in Schwandorf, einem charmanten Ort in der Oberpfalz, Deutschland. Die Immobilie liegt in einem gut frequentierten Gebiet, das sowohl bei Anwohnern als auch Besuchern beliebt ist. Die Nähe zu wesentlichen Einrichtungen wie Geschäften, Cafés und Restaurants macht diesen Standort besonders attraktiv für Unternehmen, die auf gute Erreichbarkeit angewiesen sind. Stadtzentrum, Breite Strasse 15.
Schwandorf bietet eine exzellente Infrastruktur und ist optimal an das regionale Verkehrsnetz angebunden. Der Bahnhof ist in wenigen Minuten erreichbar, was eine komfortable Anreise mit öffentlichen Verkehrsmitteln ermöglicht. Auch für den Individualverkehr ist die Lage ideal, da die Stadt gut mit den umliegenden Autobahnen vernetzt ist.
Durch die malerische Lage in der Region Oberpfalz haben Besucher und Mitarbeiter zudem die Möglichkeit, ihre Pausen in einer ansprechenden Umgebung zu verbringen. Die facettenreiche Umgebung bietet zahlreiche Freizeitmöglichkeiten, von kulturellen Veranstaltungen bis hin zu erholsamen Spaziergängen im Grünen. Diese Kombination aus zentraler Lage, hervorragender Infrastruktur und lebendigem Umfeld macht das Praxishaus zu einem idealen Standort für diverse Geschäftsmodelle.
Beschreibung zur Ausstattung:
- Gesamtfläche > 335 Quadratmeter
- großzügiger multifunktionaler Zentralraum
- 7 (bis 9) Individualräume für Praxis- oder Büronutzung
- Lager- und Nebenräume
- Personal- und Besucher-WC
- Bezugsfertig nach Grundreinigung
- Empfang und Möblierung für Arztpraxis (können übernommen werden)
- sieben großzügige Tiefgaragenstellplätze (a 35,00 € netto)
- Fahrstuhl auch für Kunden - ab Tiefgarage
- Gebäude-Energieeffizienzklasse A
- nur 1560,- Nettokaltmiete
- geringe Nebenkosten: monatlich 590,00 € netto (Vorauszahlungspauschale)
Stand vom: 2025-06-30
Anbieter:
RE/MAX in Regensburg
Herr Rudolf Arnold
Prüfeninger Schloßstr. 2
93051 Regensburg
Telefon: +49 941 30770-238
E-Mail: rudolf.arnold@remax.de
Homepage: www.remax-regensburg.de
Kontaktformular:






















Rudi Arnold
RE/MAX in Regensburg